Quadrilocale in vendita

Pianezza, Via Norberto Bobbio - Parucco
€ 299.000
4 locali 4 locali
120 Mq 120 Mq
2 bagni 2 bagni

Quadrilocale in vendita

Pianezza, Via Norberto Bobbio - Parucco

Descrizione annuncio

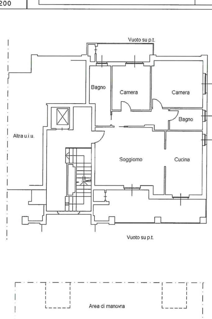
Proponiamo in vendita, in un contesto residenziale recente del 2010 situato nella tranquilla zona di San Pancrazio, comoda ai principali servizi quali supermercati, farmacia, scuole, fermate del bus e aree verdi, un appartamento posto al primo piano di uno stabile privo di barriere architettoniche e dotato di ascensore.

L’immobile si sviluppa comodamente su un unico livello ed è composto da ingresso tramite portoncino blindato su un ampio e luminoso soggiorno. La cucina è abitabile e, insieme al soggiorno, dispone di accesso diretto al terrazzo, ideale da sfruttare come spazio esterno durante la bella stagione. Il terrazzo è dotato sia di tende estive che di tende invernali e l’affaccio sull’area libera con vista sul verde garantisce un’ottima luminosità agli ambienti interni.

Attraverso una porta scorrevole si accede al disimpegno che separa la zona giorno dalla zona notte. Qui troviamo una spaziosa camera matrimoniale e una cameretta con accesso all’ampio balcone, anch’esso dotato di tende estive e invernali e di una comoda area ripostiglio esterna.

Sullo stesso piano sono presenti due servizi finestrati, entrambi di generose dimensioni, uno dotato di box doccia e l’altro di vasca.

Completano la proprietà, al piano interrato, un’ampia cantina pavimentata e un box auto doppio in larghezza con due accessi separati ma unito internamente, provvisto già di colonnina per la ricarica di autovetture elettriche, venduto a un prezzo separato di euro 35.000.

L’appartamento è dotato di videocitofono, infissi con doppi vetri e riscaldamento a pavimento, caratteristiche che garantiscono un elevato comfort abitativo e una gestione efficiente dei consumi.

Mostra tutto

Nelle vicinanze

Trasporto pubblico Trasporto pubblico
Alpignano
Alpignano
2,4 Km
Parucco
Parucco
130 m
Parucco N.27
Parucco N.27
140 m
Ricariche auto elettriche Ricariche auto elettriche
Piscina I. Bonino | EnelX
150 m
Pianezza Papa Giovanni II | EnelX
1,1 Km
Pianezza II Giugno | EnelX
1,3 Km
Pianezza Via Torino | EnelX
2,5 Km
Scuole Scuole
Istituto Tecnico Agrario Statale "G. Dalmasso"
500 m
Scuola Elementare Nino Costa
870 m
Scuola Media Giovanni XXIII
1,0 Km
Scuole
1,1 Km
Scuola Primaria "Antonio Gramsci"
1,3 Km
Farmacia Farmacia
Parafarmacia San Pancrazio
780 m
Farmacia Comunale 17
830 m
Farmacia
930 m
Farmacia Comunale 5
1,5 Km
Farmacia Vietti
1,8 Km
Ospedali Ospedali
Poliambulatorio Villa Iris
980 m
Poliambulatorio ASL
1,2 Km
RSA Residenza al Castello
1,7 Km
IRM
2,0 Km
Ospedali
2,1 Km
Supermercati Supermercati
Supermercati
220 m
Carrefour Market
960 m
Lidl
970 m
LD
1,0 Km
Borello
1,2 Km
Negozi Negozi
Negozi
240 m
Rosella Mode
1,2 Km
Le follie di Katia
1,3 Km
Modamania
1,4 Km
Globo
1,5 Km
Bar Bar
Operà
960 m
Caffè Lara
1,1 Km
Ferehneit 451
1,3 Km
Lattolandia
1,3 Km
BarRocco
1,5 Km
Ristoranti Ristoranti
Ristoranti
720 m
Te la do io la pizza...Ristò
1,1 Km
Ristorante Pizzeria Farenheit 451
1,3 Km
Pizzeria da Andrea
1,3 Km
Ricomincio da Tre
1,4 Km
Mostra tutto

Caratteristiche

Rif.:
61187185
Piano:
2 di 2 con ascensore (Piano medio)
Box:
2
Balconi:
1
Terrazzi:
1
Camere da letto:
2
Mostra tutto
Prezzo Prezzo
€ 299.000
Prezzo box Prezzo box
€ 35.000
Rata mutuo Rata mutuo
€ 1.417 / mese
Spese annue Spese annue
€ 0
Proponi il tuo prezzoProponi il tuo prezzo

Classe Energetica

B
B
B
B
B
B
B
B
B
EP globale non rinnovabile:
67.82 kW h/m² anno
EP globale rinnovabile:
100.00 kW h/m² anno
EP invernale del fabbricato:
EP estiva del fabbricato:
Anno di costruzione:
2010
Riscaldamento:
Autonomo
Tipo impianto:
A pavimento
Tipo alimentazione:
Metano

Ti interessa visionare l'immobile?

Fissa un appuntamento  Fissa un appuntamento

Richiedi informazioni

Clicca su Leggi per aprire l'informativa
* Questi campi sono obbligatori

Calcola il tuo mutuo

Semplice e senza impegno
Anticipo

( % )
Mutuo

( % )

pochi semplici passi

inserisci i tuoi dati
Questionario completato
Grazie per aver richiesto un appuntamento senza impegno con un nostro Consulente del Credito e Assicurativo.

Hai inserito correttamente tutti i dati necessari e a breve riceverai una e-mail con un link da convalidare per inviare i tuoi dati.
Affiliato
Immobiliare Pianezza Uno Sas
Via Don Bosco, 7 10044 Pianezza (TO)

Il nostro staff


  • Giancarlo Bergamini
    Affiliato

  • Rebecca Sinagra
    Coordinatrice
Via Don Bosco, 7 10044 Pianezza (TO)
Zona: Pianezza
Mostra su mappa
Orari: dal lunedì al sabato 09.00/12.30 - 15.00/20.00
Affiliato
Immobiliare Pianezza Uno Sas
Via Don Bosco, 7 10044 Pianezza (TO)

2026 Tecnocasa Franchising S.p.A. - P. IVA 08365160152 - Via Monte Bianco 60/A 20089 Rozzano (MI). Ogni agenzia ha un proprio titolare ed è autonoma. Privacy policy | Policy utilizzo | Cookie policy