Villa a schiera in vendita

Pianezza, Via Aldo Moro - Cassagna
€ 425.000
5 locali 5 locali
150 Mq 150 Mq
2 bagni 2 bagni

Villa a schiera in vendita

Pianezza, Via Aldo Moro - Cassagna

Descrizione annuncio

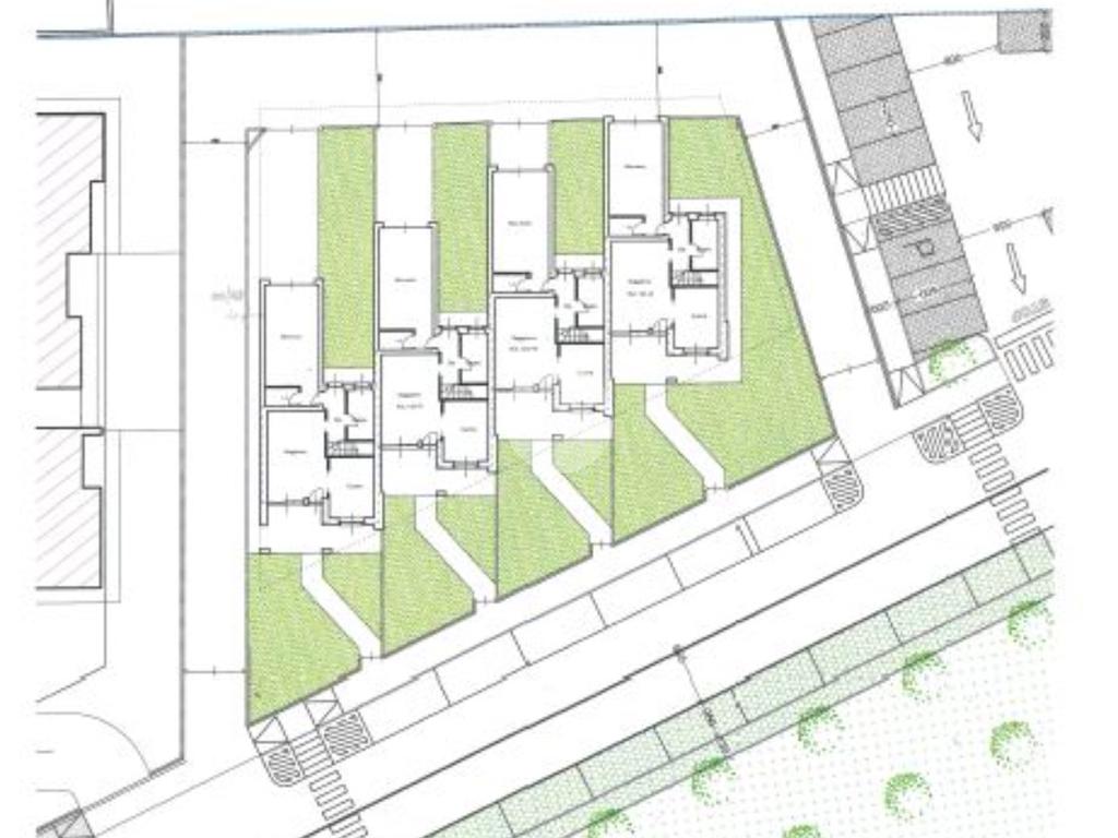
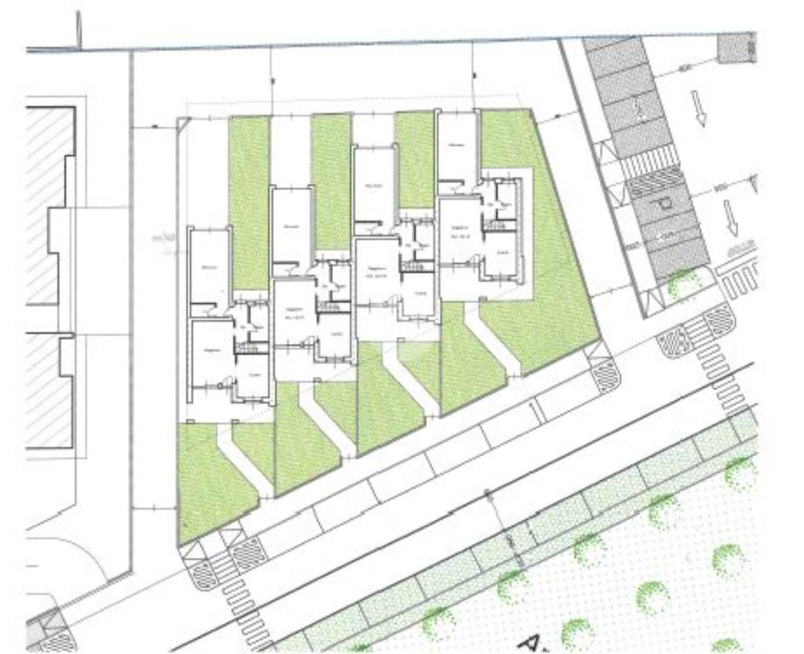
Complesso di quattro ville di nuova costruzione in classe energetica A2, site in zona residenziale di Cassagna, comoda a tutti i principali servizi, mezzi pubblici, centri commerciali, supermercati, farmacie, scuole e giardini pubblici con area giochi. Adatta per chi cerca una soluzione indipendente e priva di spese condominiali.

La villa è progettata con le più moderne tecnologie costruttive, come riscaldamento a pavimento, pompe di calore, pannelli fotovoltaici da 3 kW e la predisposizione per l'aria condizionata.

È inoltre possibile scegliere i materiali per le finiture interne che si desiderano su un capitolato di alta qualità.

La costruzione è dotata di travi a vista in legno sbiancato, dettaglio elegante e moderno che aumenta la luminosità degli spazi interni, creando un'atmosfera accogliente e raffinata.

La villa internamente è composta al piano terra da un soggiorno spazioso living con cucina abitabile e da un servizio. La zona giorno affaccia su un porticato esterno privato e un giardino esclusivo.

I serramenti esterni ad alta prestazione energetica, sono in PVC e di colore chiaro, dotati di vetro isolato e frangisole interno motorizzato.

Inoltre, nella zona giorno è presente un elegante e moderno serramento scorrevole che offre un' apertura verso l'esterno a contatto con il verde.

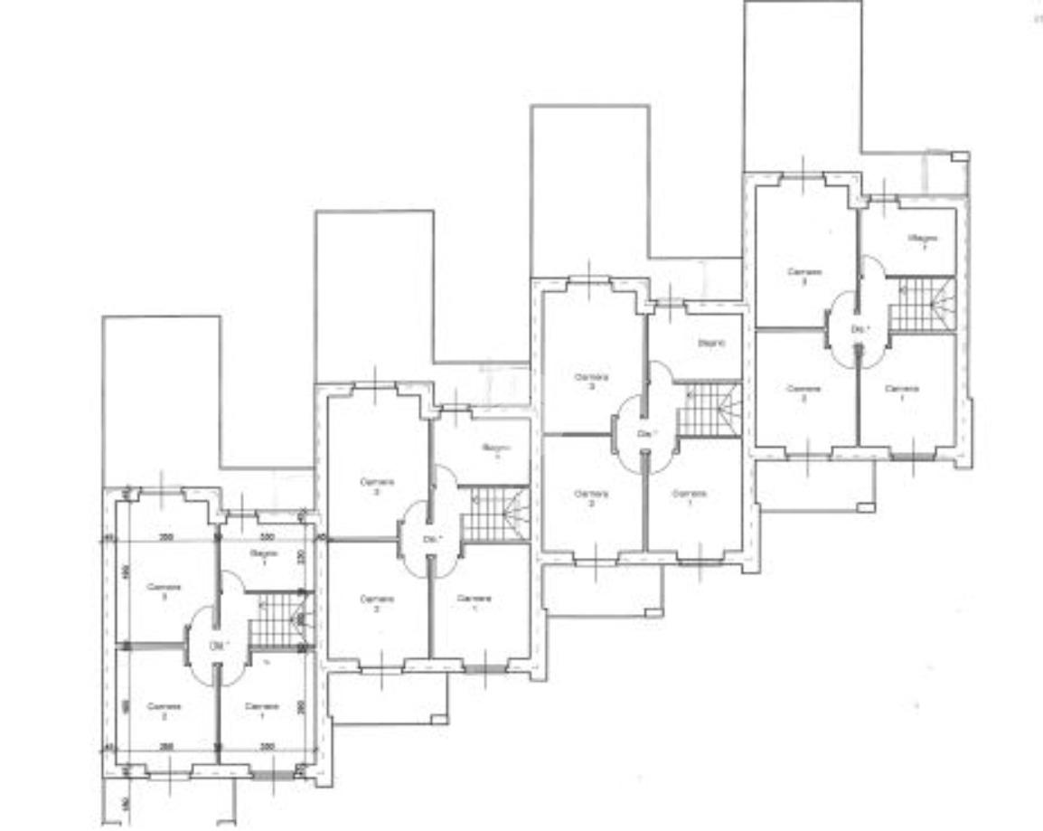
Al piano superiore, una scala interna collega la zona notte, composta da tre ampie camere da letto, con un'altezza minima di 2,55 mt e una massima di 3,90 mt, totalmente abitabili. Al piano è presente un secondo servizio. Dalla camera padronale si accede al terrazzo di 30 mq, perfetto per utilizzare gli spazi esterni con area relax e solarium.

Al piano terra, è presente il box auto all'americana di circa 28 mq dotato di portone basculante motorizzato.

L'ingresso pedonale alle singole abitazioni è completamente indipendente, ognuno dotato di portoncino blindato e videocitofono che garantiscono la massima sicurezza.

Le finiture interne della costruzione sono in stile moderno e personalizzabile. La scelta di colori chiari e il design contemporaneo ed elegante caratterizzano l'intero fabbricato nel suo insieme.

Consegna prevista per il 2026.

Mostra tutto

Nelle vicinanze

Trasporto pubblico Trasporto pubblico
Levi
Levi
190 m
Druento
Druento
340 m
Ricariche auto elettriche Ricariche auto elettriche
Pianezza II Giugno | EnelX
350 m
Pianezza Papa Giovanni II | EnelX
900 m
Piscina I. Bonino | EnelX
1,1 Km
Pianezza Via Torino | EnelX
1,5 Km
EnelX EVAD Collegno Tricolore
2,0 Km
Scuole Scuole
Scuole
510 m
Scuola Elementare Nino Costa
620 m
Scuola Media Giovanni XXIII
780 m
Istituto Tecnico Agrario Statale "G. Dalmasso"
930 m
Scuola elementare Italo Calvino
2,2 Km
Farmacia Farmacia
Farmacia
420 m
Farmacia Comunale 17
680 m
Parafarmacia San Pancrazio
880 m
Farmacia Comunale 5
2,4 Km
Farmacia Vietti
2,7 Km
Ospedali Ospedali
Poliambulatorio Villa Iris
430 m
Poliambulatorio ASL
1,1 Km
IRM
1,3 Km
RSA Residenza al Castello
2,3 Km
Guardia Medica
2,9 Km
Supermercati Supermercati
Borello
350 m
Shopping World
580 m
Mercatò
640 m
Supermercati
960 m
Carrefour Market
1,6 Km
Negozi Negozi
Globo
720 m
Negozi
930 m
Rosella Mode
960 m
Le follie di Katia
1,0 Km
Modamania
1,1 Km
Bar Bar
Caffè Lara
970 m
BarRocco
1,2 Km
Operà
1,6 Km
La Fattoria del Gelato
1,8 Km
Ferehneit 451
2,1 Km
Ristoranti Ristoranti
Te la do io la pizza...Ristò
80 m
La Casa di Totò
950 m
Pizzeria da Andrea
1,0 Km
Ricomincio da Tre
1,1 Km
L'osrteria del Musicante
1,1 Km
Mostra tutto

Caratteristiche

Rif.:
60984554
Piano:
2 di 2 (Piano su più livelli)
Box:
1
Posti auto:
1
Balconi:
2
Terrazzi:
1
Mostra tutto
Prezzo Prezzo
€ 425.000
Rata mutuo Rata mutuo
€ 1.886 / mese
Spese annue Spese annue
€ 0
Proponi il tuo prezzoProponi il tuo prezzo

Classe Energetica

A2
A2
A2
A2
A2
A2
A2
A2
A2
EP globale non rinnovabile:
30.00 kW h/m² anno
EP globale rinnovabile:
30.00 kW h/m² anno
EP invernale del fabbricato:
EP estiva del fabbricato:
Anno di costruzione:
2026
Riscaldamento:
Autonomo
Tipo impianto:
A pavimento
Tipo alimentazione:
Pannelli

Ti interessa visionare l'immobile?

Fissa un appuntamento  Fissa un appuntamento

Richiedi informazioni

* Questi campi sono obbligatori

Calcola il tuo mutuo

Semplice e senza impegno
Anticipo

( % )
Mutuo

( % )

pochi semplici passi

inserisci i tuoi dati
Questionario completato
Grazie per aver richiesto un appuntamento senza impegno con un nostro Consulente del Credito e Assicurativo.

Hai inserito correttamente tutti i dati necessari e a breve riceverai una e-mail con un link da convalidare per inviare i tuoi dati.
Affiliato
Immobiliare Pianezza Uno Sas
Via Don Bosco, 7 10044 Pianezza (TO)

Il nostro staff


  • Giancarlo Bergamini
    Affiliato

  • Rebecca Sinagra
    Coordinatrice
Via Don Bosco, 7 10044 Pianezza (TO)
Zona: Pianezza
Mostra su mappa
Orari: dal lunedì al sabato 09.00/12.30 - 15.00/20.00
Affiliato
Immobiliare Pianezza Uno Sas
Via Don Bosco, 7 10044 Pianezza (TO)

2025 Tecnocasa Franchising S.p.A. - P. IVA 08365160152 - Via Monte Bianco 60/A 20089 Rozzano (MI). Ogni agenzia ha un proprio titolare ed è autonoma. Privacy policy | Policy utilizzo | Cookie policy