Villa singola in vendita

Pianezza, Via Druento Viale Aldo Moro - Cassagna
€ 510.000
6 locali 6 locali
180 Mq 180 Mq
3 bagni 3 bagni

Villa singola in vendita

Pianezza, Via Druento Viale Aldo Moro - Cassagna

Descrizione annuncio

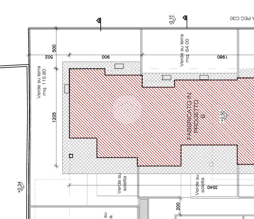
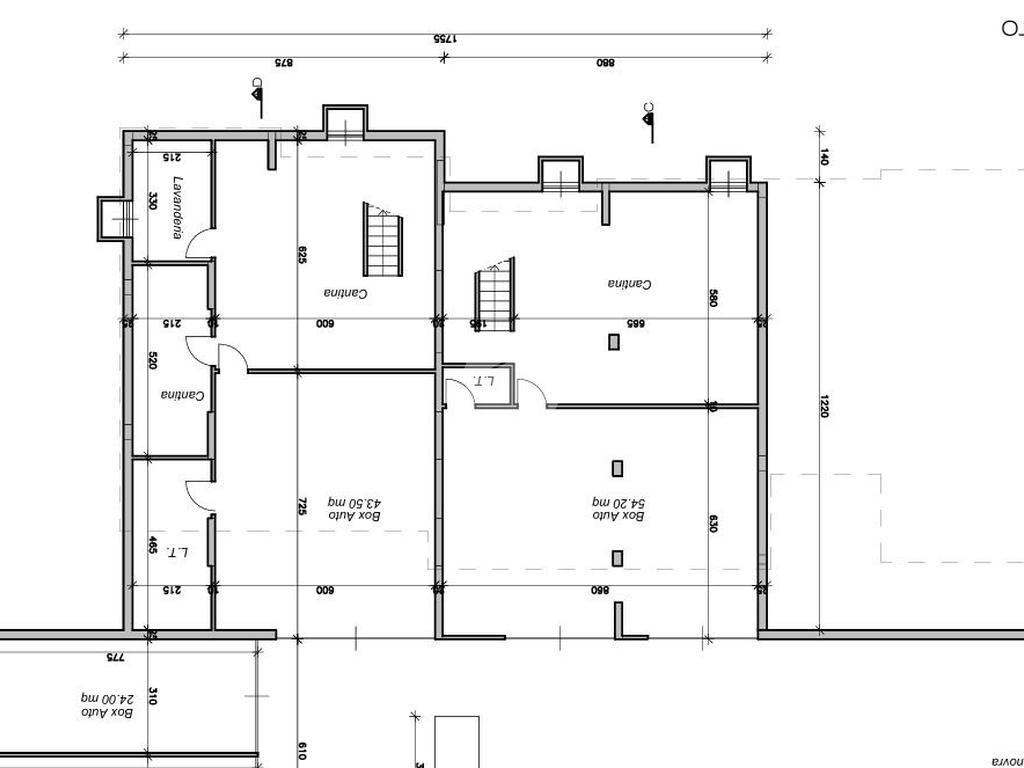
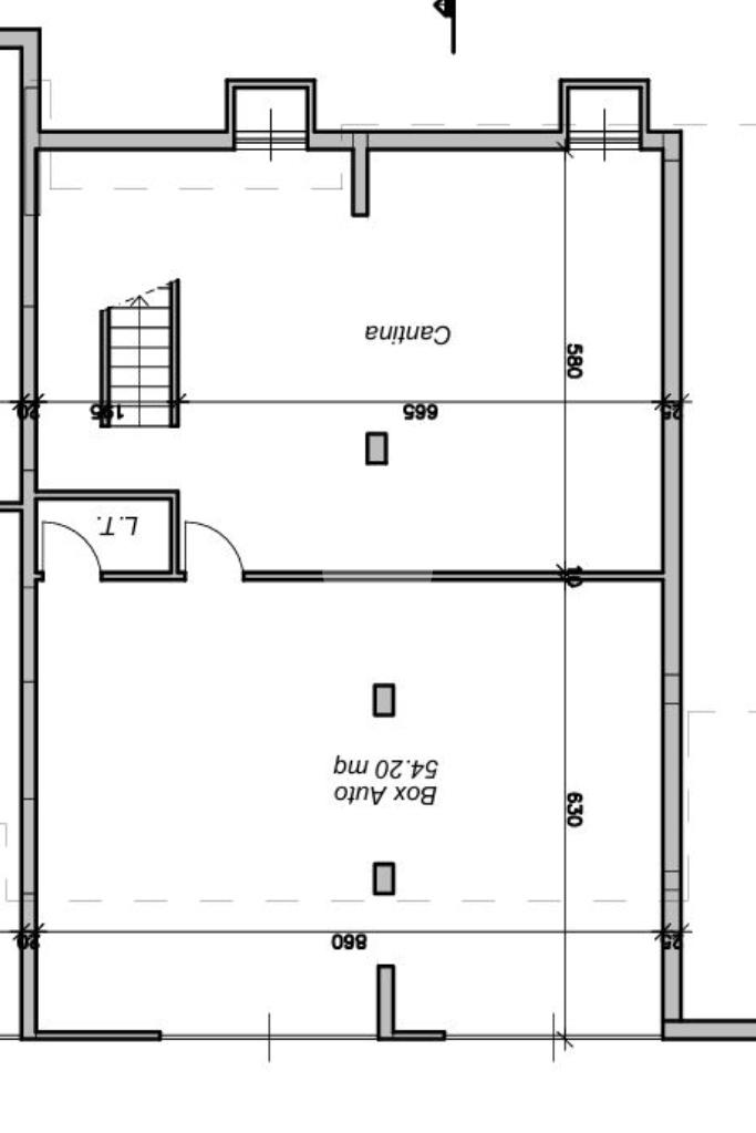
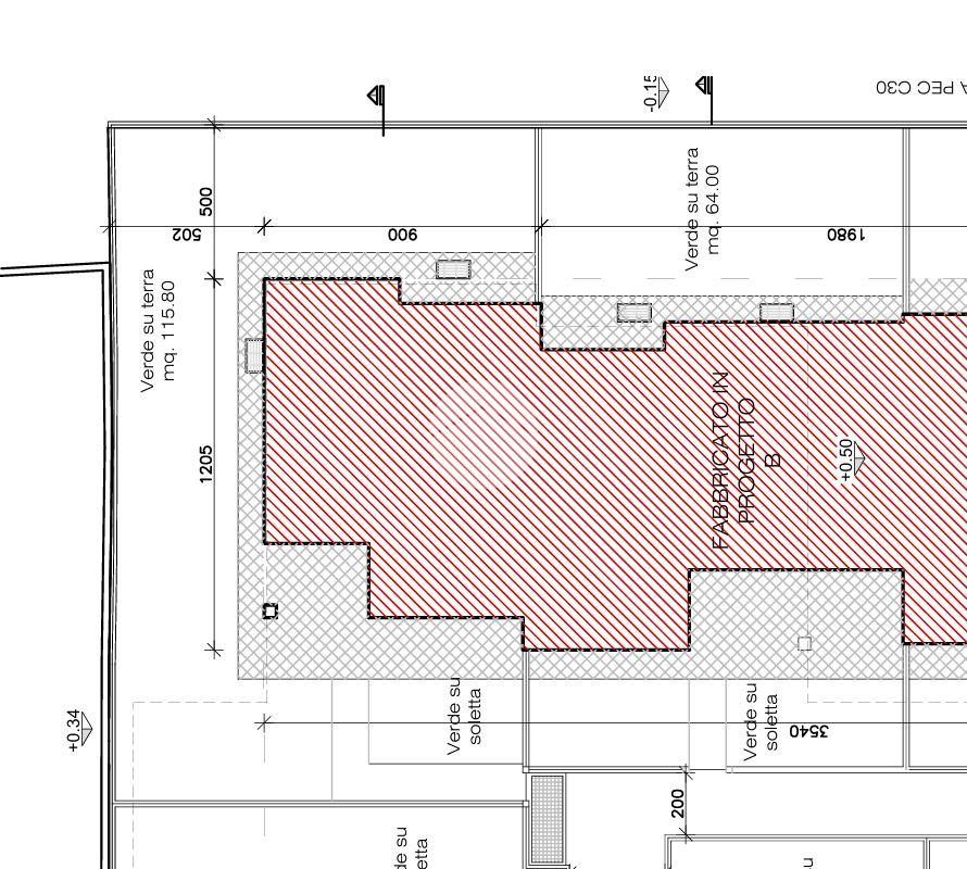
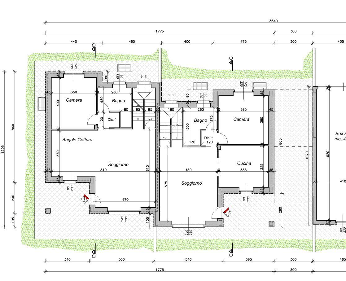
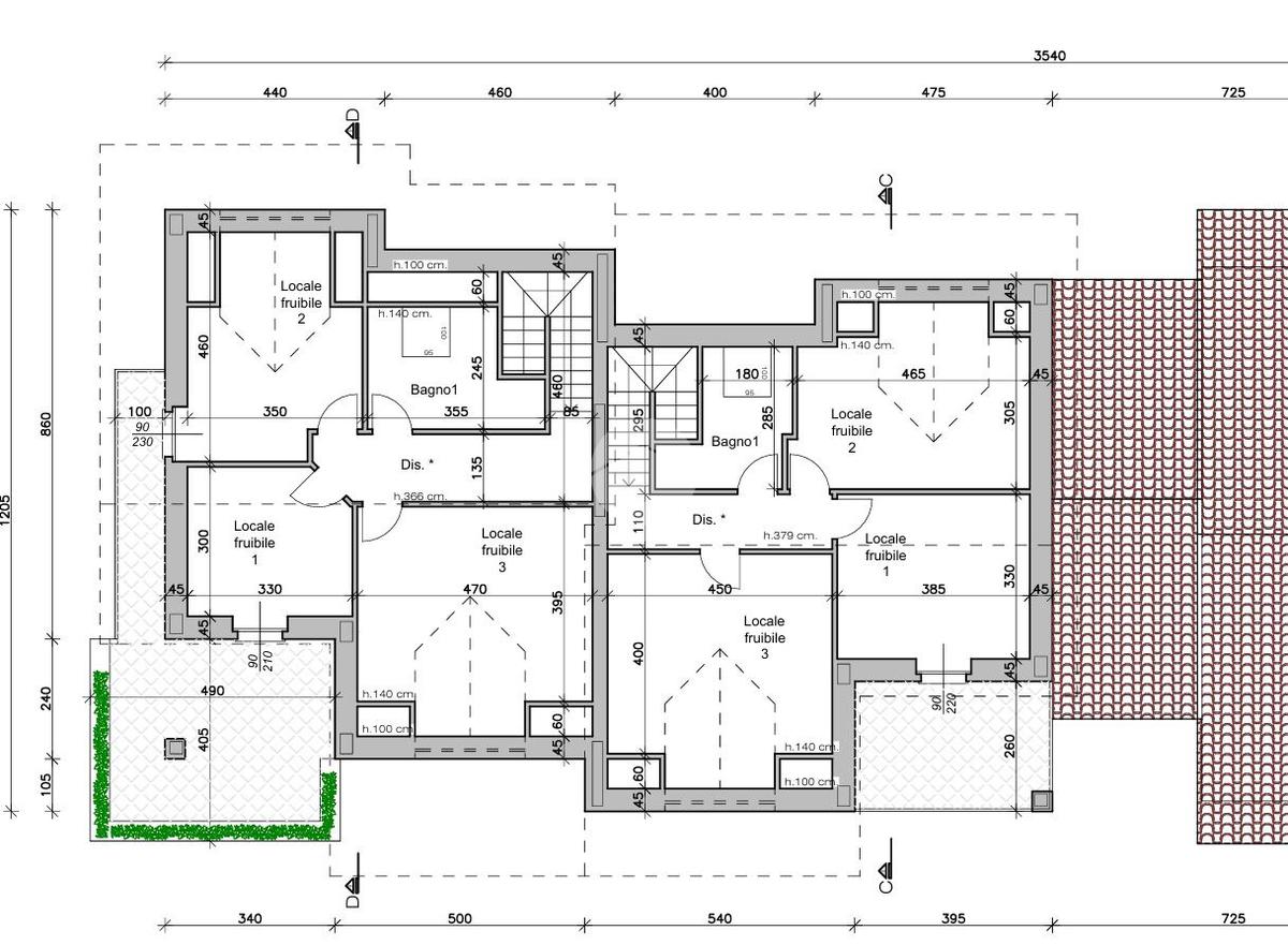
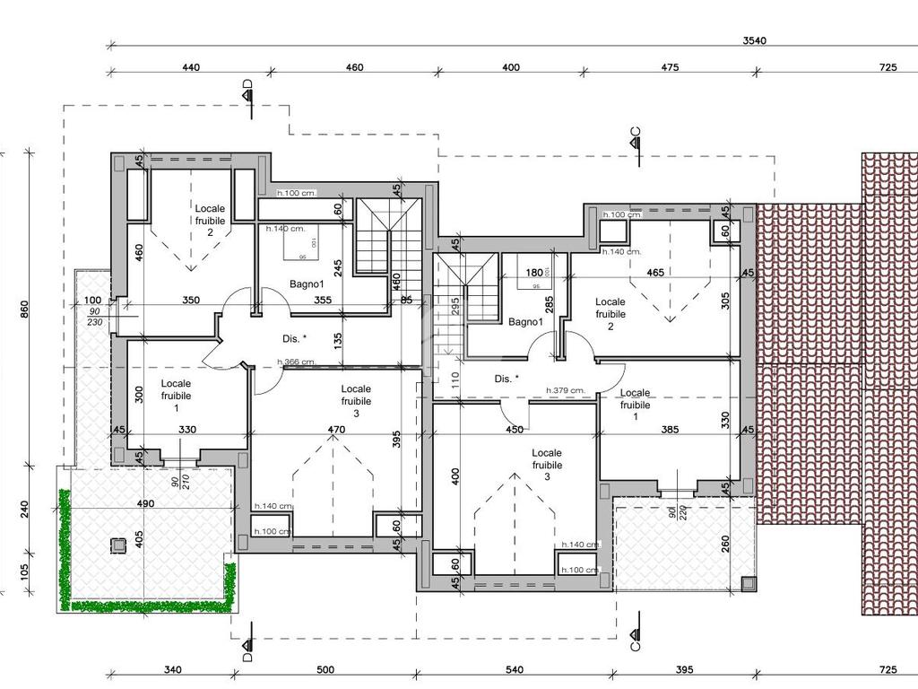
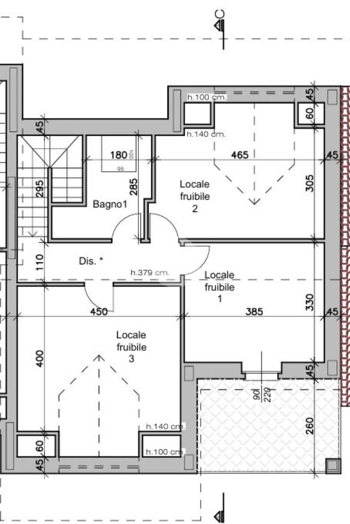
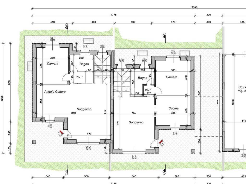
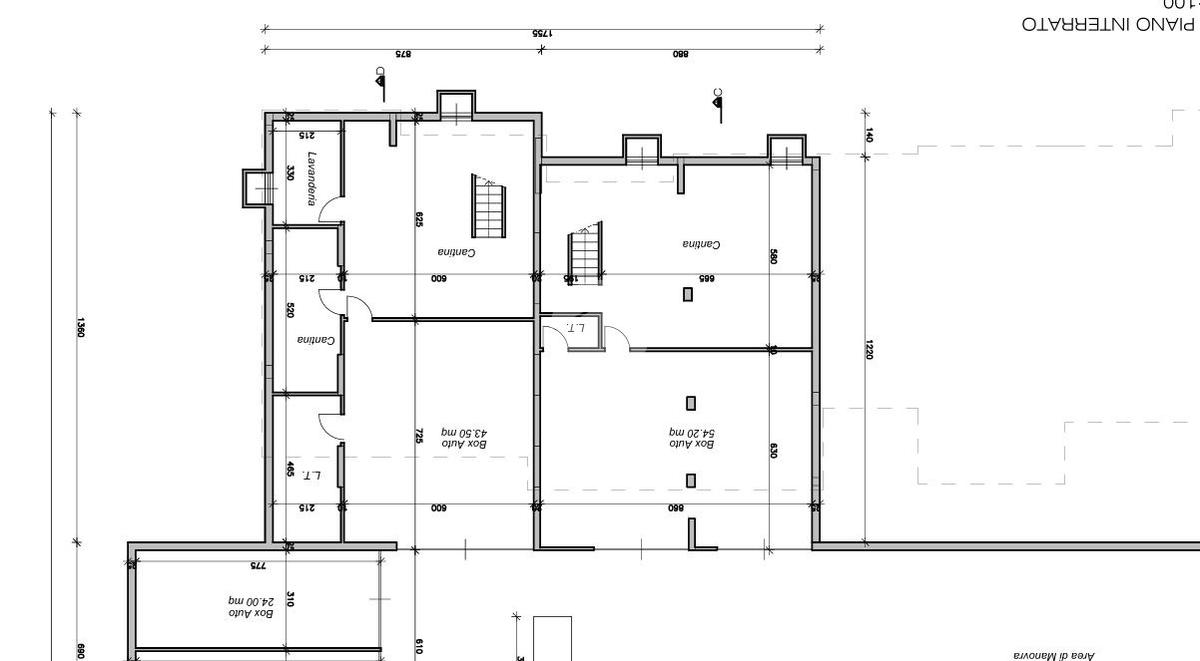
Nel comune di Pianezza, nella tranquilla località di Cassagna, è disponibile per la vendita una villa singola di categoria signorile, progettata per offrire comfort e funzionalità. Con una superficie abitabile di 180 mq distribuiti su due livelli, l'immobile comprende un' ampia zona giorno con salone e cunina abitabile e quattro camere da letto di vui una al piano senza barriere architettoniche. La villa dispone di tre bagni, un ampio terrazzo situato al piano mansardato, oltre ad un porticato ideale per momenti di relax all'aperto. Il giardino spazioso offre la possibilità di installare una piscina, mentre la predisposizione per una tavernetta aggiunge un tocco di personalizzazione e funzionalità per chi desidera avere un ulteriore ambiente versatile. L'ottima esposizione garantisce luminosità naturale in ogni ambiente. Completano la proprietà due box auto oltre comodi posti auto esterni. In fase di costruzione e titalmente persinalizzazbile negli interni, con consegna nel 2027, la villa è dotata di un impianto fotovoltaico autonomo, assicurando efficienza energetica e sostenibilità.

Mostra tutto

Nelle vicinanze

Trasporto pubblico Trasporto pubblico
Levi
Levi
240 m
Druento
Druento
300 m
Ricariche auto elettriche Ricariche auto elettriche
Pianezza II Giugno | EnelX
310 m
Pianezza Papa Giovanni II | EnelX
880 m
Piscina I. Bonino | EnelX
1,1 Km
Pianezza Via Torino | EnelX
1,5 Km
EnelX EVAD Collegno Tricolore
1,9 Km
Scuole Scuole
Scuole
490 m
Scuola Elementare Nino Costa
620 m
Scuola Media Giovanni XXIII
760 m
Istituto Tecnico Agrario Statale "G. Dalmasso"
940 m
Scuola elementare Italo Calvino
2,1 Km
Farmacia Farmacia
Farmacia
420 m
Farmacia Comunale 17
680 m
Parafarmacia San Pancrazio
880 m
Farmacia Comunale 5
2,4 Km
Farmacia Vietti
2,7 Km
Ospedali Ospedali
Poliambulatorio Villa Iris
420 m
Poliambulatorio ASL
1,1 Km
IRM
1,2 Km
RSA Residenza al Castello
2,3 Km
Guardia Medica
2,8 Km
Supermercati Supermercati
Borello
310 m
Shopping World
540 m
Mercatò
600 m
Supermercati
990 m
Carrefour Market
1,6 Km
Negozi Negozi
Globo
680 m
Negozi
910 m
Rosella Mode
940 m
Le follie di Katia
1,0 Km
Modamania
1,1 Km
Bar Bar
Caffè Lara
950 m
BarRocco
1,2 Km
Operà
1,6 Km
La Fattoria del Gelato
1,8 Km
Ferehneit 451
2,1 Km
Ristoranti Ristoranti
Te la do io la pizza...Ristò
90 m
La Casa di Totò
910 m
Pizzeria da Andrea
990 m
Ricomincio da Tre
1,1 Km
L'osrteria del Musicante
1,1 Km
Mostra tutto

Caratteristiche

Rif.:
61056950
Piano:
2 (Piano su più livelli)
Box:
2
Posti auto:
1
Balconi:
1
Terrazzi:
1
Mostra tutto
Prezzo Prezzo
€ 510.000
Rata mutuo Rata mutuo
€ 2.263 / mese
Spese annue Spese annue
€ 0
Proponi il tuo prezzoProponi il tuo prezzo

Classe Energetica

A3
A3
A3
A3
A3
A3
A3
A3
A3
EP globale non rinnovabile:
20.00 kW h/m² anno
EP globale rinnovabile:
20.00 kW h/m² anno
EP invernale del fabbricato:
EP estiva del fabbricato:
Anno di costruzione:
2027
Riscaldamento:
Autonomo
Tipo impianto:
A pavimento
Tipo alimentazione:
Pannelli

Ti interessa visionare l'immobile?

Fissa un appuntamento  Fissa un appuntamento

Richiedi informazioni

* Questi campi sono obbligatori

Calcola il tuo mutuo

Semplice e senza impegno
Anticipo

( % )
Mutuo

( % )

pochi semplici passi

inserisci i tuoi dati
Questionario completato
Grazie per aver richiesto un appuntamento senza impegno con un nostro Consulente del Credito e Assicurativo.

Hai inserito correttamente tutti i dati necessari e a breve riceverai una e-mail con un link da convalidare per inviare i tuoi dati.
Affiliato
Immobiliare Pianezza Uno Sas
Via Don Bosco, 7 10044 Pianezza (TO)

Il nostro staff


  • Giancarlo Bergamini
    Affiliato

  • Rebecca Sinagra
    Coordinatrice
Via Don Bosco, 7 10044 Pianezza (TO)
Zona: Pianezza
Mostra su mappa
Orari: dal lunedì al sabato 09.00/12.30 - 15.00/20.00
Affiliato
Immobiliare Pianezza Uno Sas
Via Don Bosco, 7 10044 Pianezza (TO)

2025 Tecnocasa Franchising S.p.A. - P. IVA 08365160152 - Via Monte Bianco 60/A 20089 Rozzano (MI). Ogni agenzia ha un proprio titolare ed è autonoma. Privacy policy | Policy utilizzo | Cookie policy